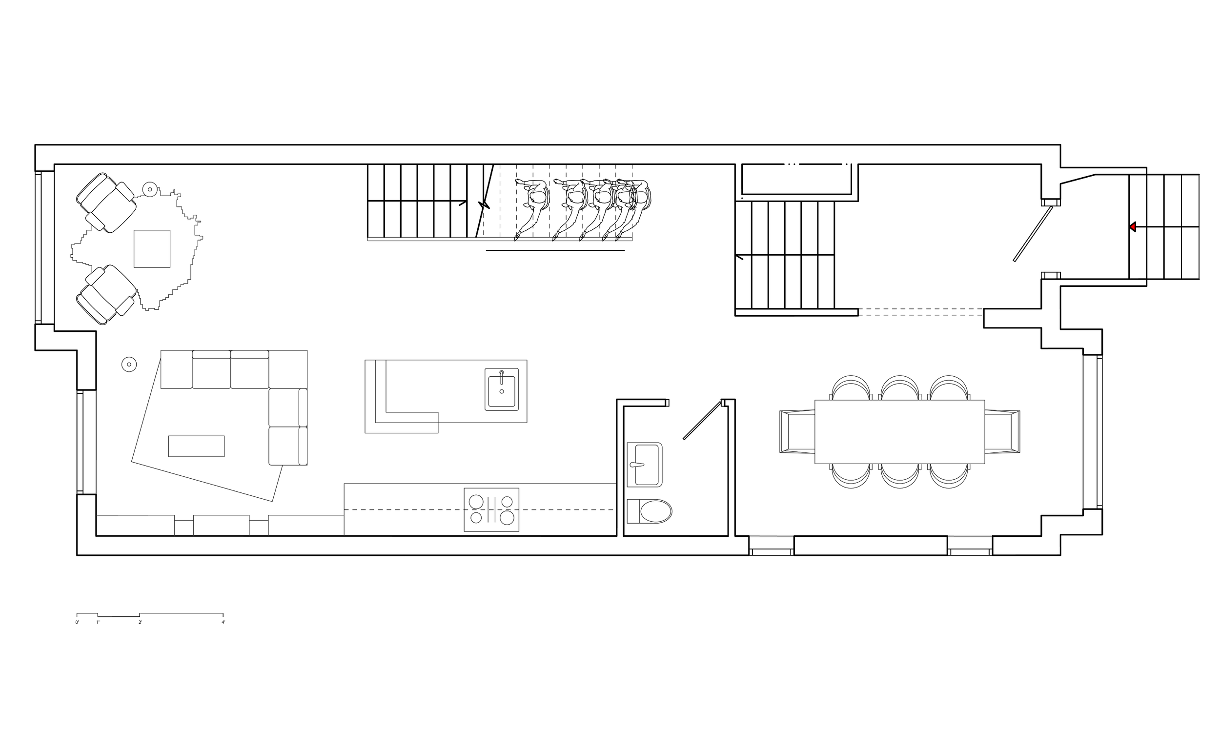
Driven by a history of a neighborhood community that has been tacitly known for its “whiteness,” the house positions itself as a piece of resistance to the formal aesthetics that it is called for. The angled façade frowns upon the street, interrupting the gaze that its glass surface enables. The threshold stretches from the exterior landing to the interior, elongating the transition time. The double-height space above the interior landing connects the two floors through a void. Black outside, white inside, the house flips the criticism on its head.